Skip To Content

15289 Oceanview Dr

Brookings, OR 97415
  • $895,000
  • STATUS: Active
  • ON SITE: 260 Days
  • MLS #: 488418772
$895,000
  • 3
    BEDS
  • 0.56
    ACRES
  • 3
    BATHS
  • 0
    1/2 BATHS
  • 2,121
    SQFT
  • $422
    $/SQFT
Type:
Single-Family Home
Built:
2019
County:

School Information

Elementary School:
Middle School:
High School:

Description

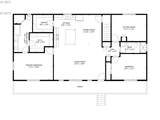
Coastal, beautifully maintained Oceanview home, built in 2019 and nestled in one of the most popular seaside neighborhoods—just moments from public beach access and an oceanside dog park! This 2,121 sq ft home offers breathtaking ocean views and an inviting open-concept floor plan for coastal living and entertaining. The heart of the home features a well-thought-out kitchen with granite countertops, an island, stainless steel appliances, vaulted ceilings, and an oversized walk-in pantry—perfect for the home chef. With three spacious bedrooms and three full bathrooms, there’s room for everyone. The oversized laundry room is ideal for hobbies, crafting, an extra bed, or even a home office. A built-in dumbwaiter adds additional convenience for moving groceries or supplies between levels. Retreat to the stunning primary suite with ocean views. It features a luxurious en-suite bath with a walk-in tiled shower, dual sinks, a soaking tub, and a generously sized walk-in closet. Enjoy a large, fenced yard with a manual gate for privacy, RV parking, and a covered deck for relaxing or entertaining. The oversized garage includes a workshop area, great for projects, storage, or recreational gear. Ask to see the Matterport Professional 3D tour, which covers the inside and outside of the home, and also ask for the floor plan.

Monthly Payment Calculator



Listing content is copyright © 2025 RMLS™, Portland, Oregon. The content relating to real estate for sale on this web site comes in part from the IDX program of the RMLS™ of Portland, Oregon. Real estate listings held by brokerage firms other than Ladd Group, Cascade Sotheby's International Realty are marked with the RMLS™ logo, and detailed information about these properties includes the names of the listing brokers. Data last updated 2025-12-10T05:46:43.027.Data deemed reliable but not guaranteed. Some properties which appear for sale on this web site may subsequently have sold or may no longer be available. IDX information is provided exclusively for consumers’ personal, non-commercial use, and may not be used for any purpose other than to identify prospective properties consumers may be interested in purchasing. All information provided is deemed reliable but is not guaranteed accurate by RMLS™ or Ladd Group, Cascade Sotheby's International Realty and should be independently verified.
www.bendpropertysource.com/homes/161806560
Print Image

15289 Oceanview Dr Brookings, OR 97415

  • Price: $895,000
  • Status: Active
  • On Site: 260 Days
  • MLS #: 488418772
3
Beds
3
Baths
0
½ Baths
0.56
Acres
2,121
SQFT
$422
$/SQFT
2019
Built
Neighborhood:
271-Curry Co:Harbor/Winchuck/Sb Chetco
County:
Curry
Area:
271-Curry Co:Harbor/Winchuck/Sb Chetco
Elementary School:
Kalmiopsis
Middle School:
Azalea
High School:
Brookings-Harbr
Property Description
Coastal, beautifully maintained Oceanview home, built in 2019 and nestled in one of the most popular seaside neighborhoods—just moments from public beach access and an oceanside dog park! This 2,121 sq ft home offers breathtaking ocean views and an inviting open-concept floor plan for coastal living and entertaining. The heart of the home features a well-thought-out kitchen with granite countertops, an island, stainless steel appliances, vaulted ceilings, and an oversized walk-in pantry—perfect for the home chef. With three spacious bedrooms and three full bathrooms, there’s room for everyone. The oversized laundry room is ideal for hobbies, crafting, an extra bed, or even a home office. A built-in dumbwaiter adds additional convenience for moving groceries or supplies between levels. Retreat to the stunning primary suite with ocean views. It features a luxurious en-suite bath with a walk-in tiled shower, dual sinks, a soaking tub, and a generously sized walk-in closet. Enjoy a large, fenced yard with a manual gate for privacy, RV parking, and a covered deck for relaxing or entertaining. The oversized garage includes a workshop area, great for projects, storage, or recreational gear. Ask to see the Matterport Professional 3D tour, which covers the inside and outside of the home, and also ask for the floor plan.
Exterior Features

Architectural Style Stories2 Custom Style Attached Garage YN No Exterior Description Cement Siding Exterior Features Covered Deck Deck Fenced RVParking Workshop Yard Foundation Details Concrete Perimeter Slab Garage Type Extra Deep Oversized Lot Features Cleared Gated Gentle Sloping Level Ocean Beach One Quarter Mile Or Less Parking Features Driveway RVAccess Parking Parking Total 2 Road Surface Type Paved Roof Composition View Description Mountain Ocean Territorial View YN Yes

Interior Features

Additional Room Description Bathroom Additional Room Level Upper Additional Room2 Description Laundry Additional Room2 Level Main Additional Room3 Description Workshop Additional Room3 Level Main Appliances Dishwasher Disposal Free Standing Range Free Standing Refrigerator Granite Island Microwave Pantry Plumbed For Ice Maker Range Hood Stainless Steel Appliance Tile Basement Exterior Entry Finished Full Basement Bathrooms Full Lower Level 1 Bathrooms Full Main Level 2 Bathrooms Full Upper Level 0 Bathrooms Partial Lower Level 0 Bathrooms Partial Main Level 0 Bathrooms Partial Upper Level 0 Cooling Heat Pump Cooling YN Yes Dining Room Features Dumbwaiter Dining Room Features Cont Vaulted Ceiling Dining Room Level Upper Fireplaces Total 0 Heating Heat Pump Heating YN Yes Interior Features Ceiling Fan Dumbwaiter Garage Door Opener Granite High Ceilings Laundry Luxury Vinyl Plank Soaking Tub Tile Floor Vaulted Ceiling Kitchen Features Builtin Features Dishwasher Island Microwave Pantry Kitchen Features Cont Free Standing Range Free Standing Refrigerator Granite Kitchen11 Level Upper Living Room Features Deck Exterior Entry Living Room Features Cont Vaulted Ceiling Living Room Level Upper Lower Level Area Total 0 Main Level Area Total 321 Primary Bedroom Features Cont Double Sinks Ensuite Granite Soaking Tub Tile Floor Walkin Closet Walkin Shower Wallto Wall Carpet Primary Bedroom Level Upper Second Bedroom Features Cont Closet High Ceilings Wallto Wall Carpet Second Bedroom Level Upper Third Bedroom Features Builtin Features Third Bedroom Features Cont Closet High Ceilings Third Bedroom Level Upper Upper Level Area Total 1800 Window Features Double Pane Windows Vinyl Frames

Property Features

Accessibility Features Accessible Doors Accessible Entrance Accessible Full Bath Accessible Hallway Natural Lighting Utility Room On Main Walkin Shower Accessibility YN Yes Association YN No Bank Owned YN No Fuel Description Electricity Green Certification YN No Home Warranty YN No Hot Water Description Electricity IDXAddress Display YN Yes Listing Terms Cash Conventional VALoan New Construction YN No Property Attached YN No Property Condition Resale Property Sub Type Single Family Residence RVDescription RVParking Senior Community YN No Sewer Sand Filtered Septic Tank Short Sale YN No Tax Annual Amount 2915.16 Tax Year 2024 Water Source Public Water Zoning R2

Listing provided courtesy of RE/MAX Coast and Country: 541-412-9535.


Listing content is copyright © 2025 RMLS™, Portland, Oregon. The content relating to real estate for sale on this web site comes in part from the IDX program of the RMLS™ of Portland, Oregon. Real estate listings held by brokerage firms other than Ladd Group, Cascade Sotheby's International Realty are marked with the RMLS™ logo, and detailed information about these properties includes the names of the listing brokers. Data last updated 2025-12-10T05:46:43.027.Data deemed reliable but not guaranteed. Some properties which appear for sale on this web site may subsequently have sold or may no longer be available. IDX information is provided exclusively for consumers’ personal, non-commercial use, and may not be used for any purpose other than to identify prospective properties consumers may be interested in purchasing. All information provided is deemed reliable but is not guaranteed accurate by RMLS™ or Ladd Group, Cascade Sotheby's International Realty and should be independently verified.
 
https://bt-photos.global.ssl.fastly.net/portland/1280_boomver_2_488418772-2.jpg https://bt-photos.global.ssl.fastly.net/portland/1280_boomver_2_488418772-2.jpg https://bt-photos.global.ssl.fastly.net/portland/1280_boomver_2_488418772-2.jpg
Logo
Ladd Group, Cascade Sotheby's International Realty
650 SW Bond St, Suite 100
Bend OR, 97702