Skip To Content

16907 NE 37th Ave

Vancouver, WA 98686
  • $838,400
  • STATUS: Active
  • ON SITE: 56 Days
  • MLS #: 210155791
UPDATED: 46 min ago
$838,400
  • 3
    BEDS
  • N/A
    ACRES
  • 2
    BATHS
  • 1
    1/2 BATHS
  • 2,346
    SQFT
  • $357
    $/SQFT
Type:
Single-Family Home
Built:
2025
County:

School Information

Elementary School:
Middle School:
High School:

Description

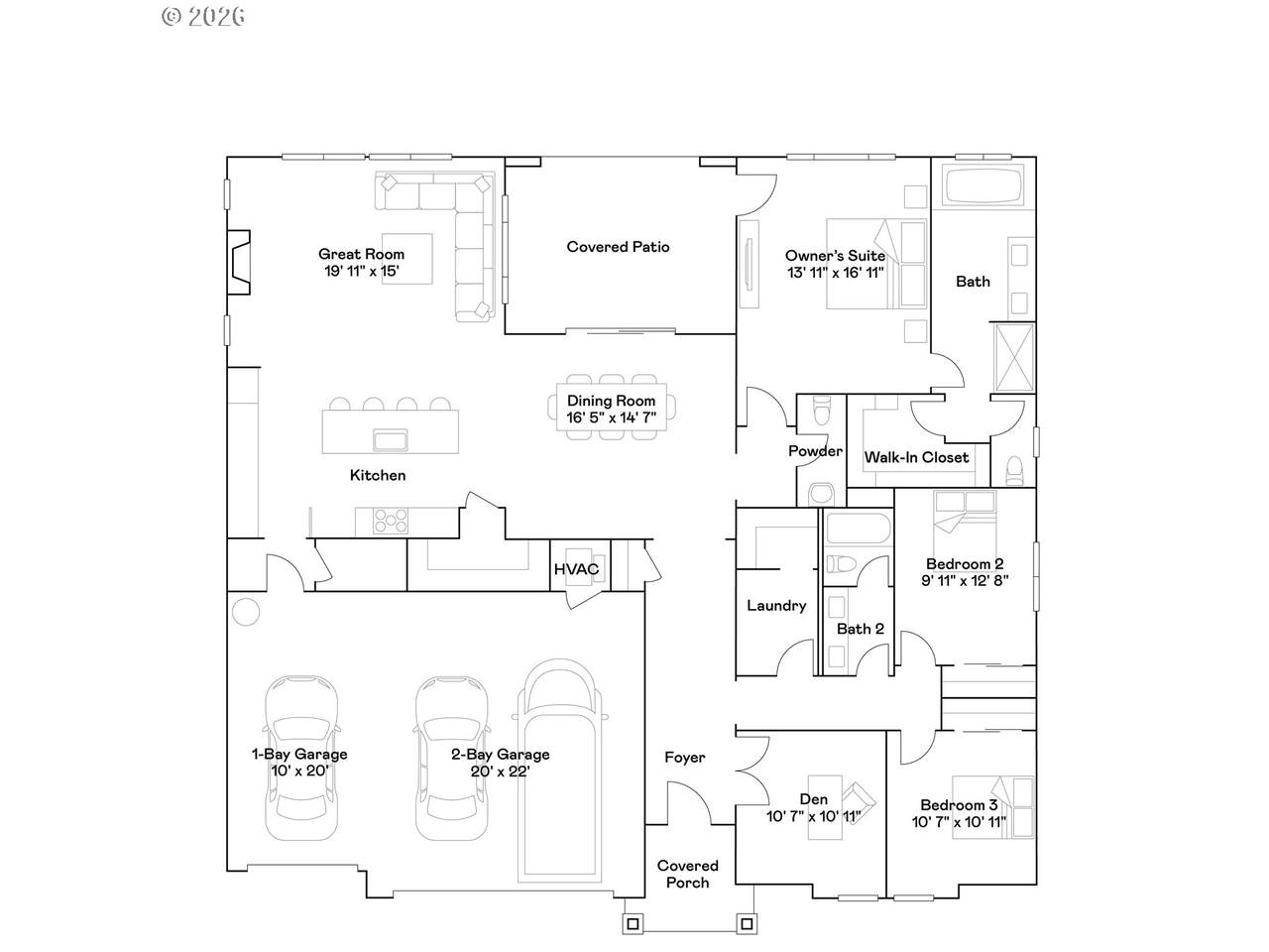
Salmon Creek Ridge By Lennar Homes! This single-story home boasts a low-maintenance and modern layout. Two bedrooms and a versatile den can be found off the foyer leading to an open-concept floorplan with convenient access to a covered patio for seamless entertaining and multitasking. The luxurious owner’s suite is tucked into a private rear corner, providing direct access to an en-suite bathroom and walk-in closet. Home includes: air conditioning, blinds, refrigerator, washer, and dryer. Prices, dimensions and features may vary and are subject to change. Photos are for illustrative purposes only. Taxes not yet assessed. Below-market rate incentives available with the use of our preferred lender! Eaton Plan, Homesite # 55, Move in ready!

Monthly Payment Calculator



Listing content is copyright © 2026 RMLS™, Portland, Oregon. The content relating to real estate for sale on this web site comes in part from the IDX program of the RMLS™ of Portland, Oregon. Real estate listings held by brokerage firms other than Ladd Group, Cascade Sotheby's International Realty are marked with the RMLS™ logo, and detailed information about these properties includes the names of the listing brokers. Data last updated 2026-03-14T14:44:41.047.Data deemed reliable but not guaranteed. Some properties which appear for sale on this web site may subsequently have sold or may no longer be available. IDX information is provided exclusively for consumers’ personal, non-commercial use, and may not be used for any purpose other than to identify prospective properties consumers may be interested in purchasing. All information provided is deemed reliable but is not guaranteed accurate by RMLS™ or Ladd Group, Cascade Sotheby's International Realty and should be independently verified.
www.bendpropertysource.com/homes/172201482
Print Image

16907 NE 37th Ave Vancouver, WA 98686

  • Price: $838,400
  • Status: Active
  • On Site: 56 Days
  • Updated: 46 min ago
  • MLS #: 210155791
3
Beds
2
Baths
1
½ Baths
N/A
Acres
2,346
SQFT
$357
$/SQFT
2025
Built
Neighborhood:
044-Vancouver:N Salmon Creek
County:
Clark
Area:
044-Vancouver:N Salmon Creek
Elementary School:
Pleasant Valley
Middle School:
Pleasant Valley
High School:
Prairie
Property Description
Salmon Creek Ridge By Lennar Homes! This single-story home boasts a low-maintenance and modern layout. Two bedrooms and a versatile den can be found off the foyer leading to an open-concept floorplan with convenient access to a covered patio for seamless entertaining and multitasking. The luxurious owner’s suite is tucked into a private rear corner, providing direct access to an en-suite bathroom and walk-in closet. Home includes: air conditioning, blinds, refrigerator, washer, and dryer. Prices, dimensions and features may vary and are subject to change. Photos are for illustrative purposes only. Taxes not yet assessed. Below-market rate incentives available with the use of our preferred lender! Eaton Plan, Homesite # 55, Move in ready!
Exterior Features

Architectural Style Stories1 Craftsman Attached Garage YN Yes Exterior Description Cement Siding Cultured Stone Exterior Features Fenced Patio Sprinkler Yard Foundation Details Concrete Perimeter Pillar Post Pier Stem Wall Garage Type Attached Lot Features Gated Level Parking Features Driveway Parking Total 3 Road Surface Type Paved Roof Composition View YN No

Interior Features

Additional Room Description Den Additional Room Level Main Appliances Builtin Oven Convection Oven Cooktop Dishwasher Disposal Free Standing Refrigerator Island Microwave Pantry Plumbed For Ice Maker Quartz Stainless Steel Appliance Basement Crawl Space Bathrooms Full Lower Level 0 Bathrooms Full Main Level 2 Bathrooms Full Upper Level 0 Bathrooms Partial Lower Level 0 Bathrooms Partial Main Level 1 Bathrooms Partial Upper Level 0 Cooling Central Air Heat Pump Cooling YN Yes Dining Room Level Main Fireplace Features Electric Fireplace YN Yes Fireplaces Total 1 Heating Forced Air Heat Pump Heating YN Yes Interior Features Garage Door Opener High Ceilings Laundry Luxury Vinyl Plank Luxury Vinyl Tile Quartz Wallto Wall Carpet Washer Dryer Kitchen Features Builtin Range Dishwasher Microwave Kitchen Features Cont Builtin Oven Free Standing Refrigerator Quartz Kitchen11 Level Main Lower Level Area Total 0 Main Level Area Total 2346 Primary Bedroom Features Exterior Entry Primary Bedroom Level Main Second Bedroom Level Main Third Bedroom Level Main Upper Level Area Total 0 Window Features Double Pane Windows Vinyl Frames

Property Features

Accessibility Features Garageon Main Ground Level Main Floor Bedroom Bath Minimal Steps Utility Room On Main Walkin Shower Accessibility YN Yes Association Amenities Commons Front Yard Landscaping Gated Association Fee 106 Association Fee Frequency Monthly Association YN Yes Bank Owned YN No Farm YN No Fuel Description Electricity Green Certification YN No Home Warranty YN Yes Hot Water Description Electricity IDXAddress Display YN Yes Internet Service Type Cable Fiber Optics Listing Terms Cash Conventional FHA VALoan New Construction YN Yes Property Attached YN No Property Condition Under Construction Property Sub Type Single Family Residence Rent Amount 0 Security Features Fire Sprinkler System Senior Community YN No Sewer Public Sewer Short Sale YN No Tax Annual Amount 0 Tax Year 2025 Water Source Public Water

Listing provided courtesy of Lennar Sales Corp: .


Listing content is copyright © 2026 RMLS™, Portland, Oregon. The content relating to real estate for sale on this web site comes in part from the IDX program of the RMLS™ of Portland, Oregon. Real estate listings held by brokerage firms other than Ladd Group, Cascade Sotheby's International Realty are marked with the RMLS™ logo, and detailed information about these properties includes the names of the listing brokers. Data last updated 2026-03-14T14:44:41.047.Data deemed reliable but not guaranteed. Some properties which appear for sale on this web site may subsequently have sold or may no longer be available. IDX information is provided exclusively for consumers’ personal, non-commercial use, and may not be used for any purpose other than to identify prospective properties consumers may be interested in purchasing. All information provided is deemed reliable but is not guaranteed accurate by RMLS™ or Ladd Group, Cascade Sotheby's International Realty and should be independently verified.
 
https://bt-photos.global.ssl.fastly.net/portland/1280_boomver_1_210155791-2.jpg https://bt-photos.global.ssl.fastly.net/portland/1280_boomver_1_210155791-2.jpg https://bt-photos.global.ssl.fastly.net/portland/1280_boomver_1_210155791-2.jpg
Logo
Ladd Group, Cascade Sotheby's International Realty
650 SW Bond St, Suite 100
Bend OR, 97702