Skip To Content

2690 NW 26th Lp North

Redmond, OR 97756
  • $564,900
  • STATUS: Active
  • ON SITE: 51 Days
  • MLS #: 220214104
UPDATED: 23 min ago
$564,900
  • 4
    BEDS
  • 0.17
    ACRES
  • 2
    BATHS
  • 0
    1/2 BATHS
  • 1,946
    SQFT
  • $290
    $/SQFT
Neighborhood:
Type:
Single-Family Home
Built:
2026
County:
Area:

School Information

Elementary School:
Middle School:
High School:
Listing provided courtesy of Lennar Sales Corp :.

Description

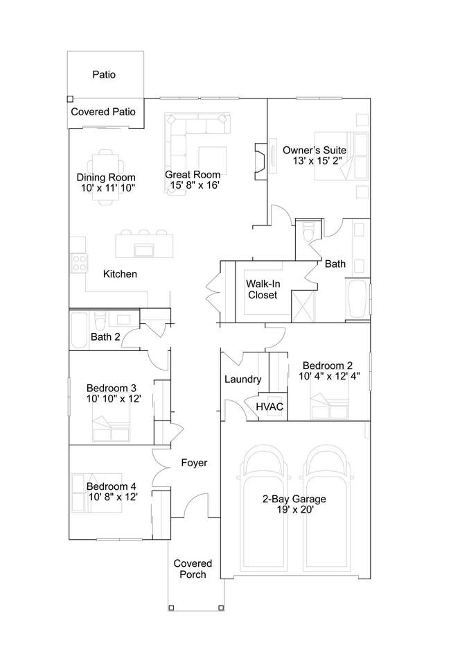
Welcome to Dry Canyon, a new 55+ Community in Redmond by Lennar with easy access to shopping, dining, and local parks. This Endicott plan is a single-story home offering an open layout plan with kitchen, family room and dining room. The owner's suite is situated in the rear of the home for increased privacy. The ensuite showcases a double vanity with separate tub and shower and a roomy walk-in closet. Three bedrooms frame the foyer, making room for guests or office/hobby spaces. Highlights include quartz counters, Shaker-style cabs with soft close hardware, LVP flooring and carpet in the living spaces with LVT flooring in the baths and laundry. Features include a gas fire place in the family room, refrigerator, washer & dryer, blinds, AC and Tankless Water Heater, all included at no extra cost. Xeriscape front landscaping with drip system. Photos are of the same plan but different model home. Site# 92 Below-market rate incentives available when financing with preferred lender!

Monthly Payment Calculator

Central Oregon Association of Realtors logo © 2026 Oregon Datashare (KCAR | MLSCO | SOMLS). All rights reserved. The data relating to real estate for sale on this web site comes in part from the Internet Data Exchange Program of the Oregon Datashare. Real estate listings held by IDX Brokerage firms other than Ladd Group, Cascade Sotheby's International Realty are marked with the Internet Data Exchange logo or the Internet Data Exchange thumbnail logo and detailed information about them includes the name of the listing Brokers. Information provided is for consumers' personal, non-commercial use and may not be used for any purpose other than to identify prospective properties the viewer may be interested in purchasing. The consumer will not copy, retransmit nor redistribute any of the content from this website. Information provided is deemed reliable, but not guaranteed. Listing courtesy of Ladd Group, Cascade Sotheby's International Realty. Data last updated: .2026-03-15T19:43:40.24
www.bendpropertysource.com/homes/172370576
Print Image

2690 NW 26th Lp North Redmond, OR 97756

  • Price: $564,900
  • Status: Active
  • On Site: 51 Days
  • Updated: 23 min ago
  • MLS #: 220214104
4
Beds
2
Baths
0
½ Baths
0.17
Acres
1,946
SQFT
$290
$/SQFT
2026
Built
Neighborhood:
Dry Canyon
County:
Deschutes
Area:
Redmond
Elementary School:
Tom Mccall Elem
Middle School:
Elton Gregory Middle
High School:
Redmond High
Property Description
Welcome to Dry Canyon, a new 55+ Community in Redmond by Lennar with easy access to shopping, dining, and local parks. This Endicott plan is a single-story home offering an open layout plan with kitchen, family room and dining room. The owner's suite is situated in the rear of the home for increased privacy. The ensuite showcases a double vanity with separate tub and shower and a roomy walk-in closet. Three bedrooms frame the foyer, making room for guests or office/hobby spaces. Highlights include quartz counters, Shaker-style cabs with soft close hardware, LVP flooring and carpet in the living spaces with LVT flooring in the baths and laundry. Features include a gas fire place in the family room, refrigerator, washer & dryer, blinds, AC and Tankless Water Heater, all included at no extra cost. Xeriscape front landscaping with drip system. Photos are of the same plan but different model home. Site# 92 Below-market rate incentives available when financing with preferred lender!
Exterior Features

Architectural Style NorthwestRanch Attached Garage YN Yes Body Type [] Construction Materials Frame Exterior Features [] Foundation Details Stemwall Garage YN Yes Lot Features Drip System Parking Features AttachedGarage Door Opener Roof Composition Window Features Vinyl Frames

Interior Features

Appliances DishwasherDisposalDryerMicrowaveRangeRefrigeratorTankless Water HeaterWasher Basement [] Cooling Central Air Cooling YN Yes Family Room Yes Fireplace Features Family RoomGas Fireplace YN Yes Flooring CarpetLaminateVinyl Heating Forced AirNatural Gas Heating YN Yes Interior Features Double VanityKitchen IslandSoaking TubWalk-In Closet(s) Kitchen Yes Laundry Yes Levels One Office Yes Primary Bedroom Yes

Property Features

Accessibility Features [] Accessory Dwelling Unit YN No Additional Parcels YN No Association Amenities ClubhouseFitness CenterGatedPoolSport Court Association Fee 185 Association Fee Frequency Monthly Association Fees 60 Association Fees Frequency Monthly Association YN Yes Building Area Total 1946 CCRs YN Yes Common Walls No Common Walls Community Features [] Horse YN No Irrigation Source [] Listing Terms CashConventionalFHAVA Loan New Construction YN Yes Other Structures [] Property Sub Type Single Family Residence Rented YN No Road Frontage Type [] Road Surface Type [] Security Features Carbon Monoxide Detector(s)Smoke Detector(s) Senior Community YN Yes Sewer Public Sewer Short Term Rental Permit YN No Special Listing Conditions Standard Tax Annual Amount 0 Tax Year 2026 View [] Water Source Public Waterfront Features [] Zoning Description R4

Listing information © 2026 MLS of Central Oregon
Listing provided courtesy of Lennar Sales Corp :.

Central Oregon Association of Realtors logo © 2026 Oregon Datashare (KCAR | MLSCO | SOMLS). All rights reserved. The data relating to real estate for sale on this web site comes in part from the Internet Data Exchange Program of the Oregon Datashare. Real estate listings held by IDX Brokerage firms other than Ladd Group, Cascade Sotheby's International Realty are marked with the Internet Data Exchange logo or the Internet Data Exchange thumbnail logo and detailed information about them includes the name of the listing Brokers. Information provided is for consumers' personal, non-commercial use and may not be used for any purpose other than to identify prospective properties the viewer may be interested in purchasing. The consumer will not copy, retransmit nor redistribute any of the content from this website. Information provided is deemed reliable, but not guaranteed. Listing courtesy of Ladd Group, Cascade Sotheby's International Realty. Data last updated: .2026-03-15T19:43:40.24
 
https://bt-photos.global.ssl.fastly.net/coar/1280_boomver_1_220214104-2.jpg https://bt-photos.global.ssl.fastly.net/coar/1280_boomver_1_220214104-2.jpg https://bt-photos.global.ssl.fastly.net/coar/1280_boomver_1_220214104-2.jpg
Logo
Ladd Group, Cascade Sotheby's International Realty
650 SW Bond St, Suite 100
Bend OR, 97702
Listing provided courtesy of Lennar Sales Corp :.