Skip To Content

5362 N 87th Ave

Camas, WA 98607
  • $937,900
  • STATUS: Active
  • ON SITE: 5 Days
  • MLS #: 419604284
New On Site 5 Days Ago
UPDATED: 58 min ago
$937,900
  • 4
    BEDS
  • N/A
    ACRES
  • 3
    BATHS
  • 0
    1/2 BATHS
  • 3,249
    SQFT
  • $289
    $/SQFT
Neighborhood:
Type:
Single-Family Home
Built:
2026
County:

School Information

Elementary School:
Middle School:
High School:

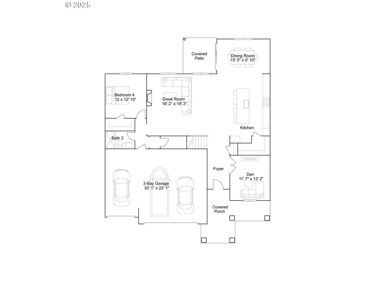
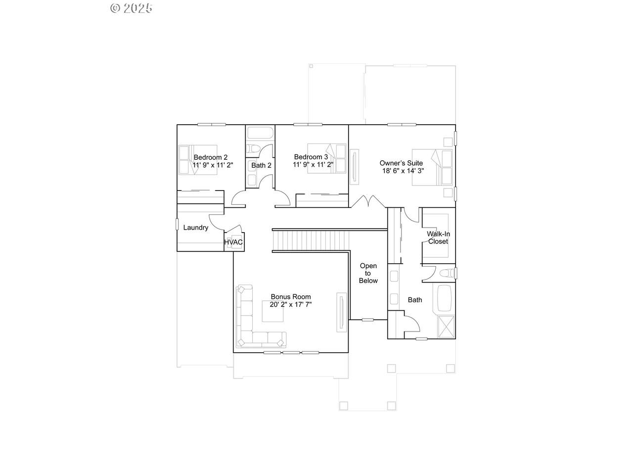
Description

This brand new home is located in a quiet community just minutes from PDX and within the highly desirable Camas School District,backing to greenspace, close to Lacamas Lake, Camas Meadows Golf Course, and shopping and dining in downtown Camas. The Rochester plan features a den off the foyer and a spacious open-concept design where the kitchen, dining, and living areas connect to a covered patio. A secondary bedroom is tucked near the main living area, while upstairs a versatile bonus room is located near three additional bedrooms, including the primary suite with a private bath featuring quartz countertops, a separate tub and shower with tile surrounds, and a clear frameless glass shower enclosure. Interior highlights include quartz countertops in the kitchen and baths, shaker-style cabinets, a picket-style tile backsplash in the kitchen, LVP flooring in the kitchen and entry, LVT flooring in the baths and laundry, and matte black fixtures and hardware throughout. Wooden shelving is included in closets and pantry, with landscaping and fencing also provided. A spacious three-car garage adds extra storage and convenience. This home also includes central heating and cooling, a refrigerator, washer and dryer, and blinds—all at no extra cost! Located on homesite 56, this home is estimated to be complete July 2026. Incentives available with the use of our preferred lender!HS#56

Monthly Payment Calculator



Listing content is copyright © 2026 RMLS™, Portland, Oregon. The content relating to real estate for sale on this web site comes in part from the IDX program of the RMLS™ of Portland, Oregon. Real estate listings held by brokerage firms other than Ladd Group, Cascade Sotheby's International Realty are marked with the RMLS™ logo, and detailed information about these properties includes the names of the listing brokers. Data last updated 2026-02-06T21:48:35.603.Data deemed reliable but not guaranteed. Some properties which appear for sale on this web site may subsequently have sold or may no longer be available. IDX information is provided exclusively for consumers’ personal, non-commercial use, and may not be used for any purpose other than to identify prospective properties consumers may be interested in purchasing. All information provided is deemed reliable but is not guaranteed accurate by RMLS™ or Ladd Group, Cascade Sotheby's International Realty and should be independently verified.
www.bendpropertysource.com/homes/172621832
Print Image

5362 N 87th Ave Camas, WA 98607

  • Price: $937,900
  • Status: Active
  • On Site: 5 Days
  • Updated: 58 min ago
  • MLS #: 419604284
4
Beds
3
Baths
0
½ Baths
N/A
Acres
3,249
SQFT
$289
$/SQFT
2026
Built
Neighborhood:
Camas Heights
County:
Clark
Area:
032-Camas City Limits
Elementary School:
Lacamas Lake
Middle School:
Liberty
High School:
Camas
Property Description
This brand new home is located in a quiet community just minutes from PDX and within the highly desirable Camas School District,backing to greenspace, close to Lacamas Lake, Camas Meadows Golf Course, and shopping and dining in downtown Camas. The Rochester plan features a den off the foyer and a spacious open-concept design where the kitchen, dining, and living areas connect to a covered patio. A secondary bedroom is tucked near the main living area, while upstairs a versatile bonus room is located near three additional bedrooms, including the primary suite with a private bath featuring quartz countertops, a separate tub and shower with tile surrounds, and a clear frameless glass shower enclosure. Interior highlights include quartz countertops in the kitchen and baths, shaker-style cabinets, a picket-style tile backsplash in the kitchen, LVP flooring in the kitchen and entry, LVT flooring in the baths and laundry, and matte black fixtures and hardware throughout. Wooden shelving is included in closets and pantry, with landscaping and fencing also provided. A spacious three-car garage adds extra storage and convenience. This home also includes central heating and cooling, a refrigerator, washer and dryer, and blinds—all at no extra cost! Located on homesite 56, this home is estimated to be complete July 2026. Incentives available with the use of our preferred lender!HS#56
Exterior Features

Architectural Style Stories2 Craftsman Attached Garage YN Yes Exterior Description Cement Siding Cultured Stone Exterior Features Sprinkler Yard Foundation Details Concrete Perimeter Pillar Post Pier Garage Type Attached Lot Features Commons Green Belt Level Seasonal Trees Lot Size Dimensions 7532 sf Parking Features Driveway EVReady Parking Total 3 Road Surface Type Paved Roof Composition View Description Trees Woods View YN Yes

Interior Features

Additional Room Description _4th Bedroom Additional Room Level Main Additional Room2 Description Den Additional Room2 Level Main Additional Room3 Description Bonus Room Additional Room3 Level Upper Appliances Builtin Oven Convection Oven Cooktop Dishwasher Disposal Free Standing Refrigerator Induction Cooktop Island Microwave Pantry Plumbed For Ice Maker Quartz Range Hood Solid Surface Countertop Stainless Steel Appliance Basement Crawl Space Bathrooms Full Lower Level 0 Bathrooms Full Main Level 1 Bathrooms Full Upper Level 2 Bathrooms Partial Lower Level 0 Bathrooms Partial Main Level 0 Bathrooms Partial Upper Level 0 Cooling Heat Pump Cooling YN Yes Dining Room Features Patio Sliding Doors Dining Room Level Main Fireplace Features Electric Fireplace YN Yes Fireplaces Total 1 Heating Forced Air95 Plus Heat Pump Heating YN Yes Interior Features Garage Door Opener High Ceilings Laundry Luxury Vinyl Plank Luxury Vinyl Tile Quartz Soaking Tub Sprinkler Wallto Wall Carpet Washer Dryer Kitchen Features Dishwasher Disposal Family Room Kitchen Combo Island Microwave Pantry Kitchen Features Cont Convection Oven Free Standing Refrigerator Quartz Solid Surface Countertop Kitchen11 Level Main Lower Level Area Total 0 Main Level Area Total 1600 Primary Bedroom Features Cont Suite Walkin Closet Primary Bedroom Level Upper Second Bedroom Level Upper Third Bedroom Level Upper Upper Level Area Total 1649 Window Features Triple Pane Windows Vinyl Frames

Property Features

Accessibility Features Main Floor Bedroom Bath Walkin Shower Accessibility YN Yes Association Amenities Commons Front Yard Landscaping Maintenance Grounds Management Association Fee 89 Association Fee Frequency Monthly Association YN Yes Bank Owned YN No Fuel Description Electricity Green Certification YN No Home Warranty YN Yes Hot Water Description Electricity Tank IDXAddress Display YN Yes Internet Service Type Cable Fiber Optics Listing Terms Cash Conventional FHA VALoan New Construction YN Yes Property Attached YN No Property Condition Under Construction Property Sub Type Single Family Residence Security Features Fire Sprinkler System Sidewalk Senior Community YN No Sewer Public Sewer Short Sale YN No Tax Annual Amount 0 Tax Year 2024 Water Source Public Water

Listing provided courtesy of Lennar Sales Corp: .


Listing content is copyright © 2026 RMLS™, Portland, Oregon. The content relating to real estate for sale on this web site comes in part from the IDX program of the RMLS™ of Portland, Oregon. Real estate listings held by brokerage firms other than Ladd Group, Cascade Sotheby's International Realty are marked with the RMLS™ logo, and detailed information about these properties includes the names of the listing brokers. Data last updated 2026-02-06T21:48:35.603.Data deemed reliable but not guaranteed. Some properties which appear for sale on this web site may subsequently have sold or may no longer be available. IDX information is provided exclusively for consumers’ personal, non-commercial use, and may not be used for any purpose other than to identify prospective properties consumers may be interested in purchasing. All information provided is deemed reliable but is not guaranteed accurate by RMLS™ or Ladd Group, Cascade Sotheby's International Realty and should be independently verified.
 
https://bt-photos.global.ssl.fastly.net/portland/1280_boomver_1_419604284-2.jpg https://bt-photos.global.ssl.fastly.net/portland/1280_boomver_1_419604284-2.jpg https://bt-photos.global.ssl.fastly.net/portland/1280_boomver_1_419604284-2.jpg
Logo
Ladd Group, Cascade Sotheby's International Realty
650 SW Bond St, Suite 100
Bend OR, 97702